Croatia - North Dalmatia
Žaborić
Apartment
offer noHRV004166
170,000 EUR
719,440 PLN
Croatia
North Dalmatia, Žaborić
overcast clouds
humidity: 81%
wind: 5km/h
16 oC
Tomorrow
17 oC

2 rooms

1 bedroom

1 bathroom
49 m2
Yes
450 m
Apartment Offer – New development with sea view, completion December 2026
We offer apartments in two newly built residential buildings located in an attractive area in Žaborić, approximately 450 m from the sea, the beach and the town centre.
Both buildings have three floors (ground floor, first floor and second floor) and are being constructed using high-quality modern materials.
All apartments will be equipped with modern ceramic tiles, high-quality sanitary fittings, PVC windows and doors, security entrance doors and air conditioning in the living room.
Underfloor heating and electric roller shutters can be installed at extra cost upon buyer’s request.
Each apartment includes one parking space.
Planned completion of construction: December 2026
Distance to the sea, beach and centre: approx. 450 m
Building 1
Apartment A1 – 178,500 EUR
Ground floor, 50.98 m²
Living room with kitchen and dining area, one bedroom, bathroom, terrace 14.35 m², south-east orientation.
Apartment A2 – 179,500 EUR
Ground floor, 51.26 m²
Living room with kitchen and dining area, one bedroom, bathroom, terrace 16.79 m², south-west orientation, sea view.
Apartment S2 – 166,500 EUR
First floor, 47.51 m²
Living room with kitchen and dining area, one bedroom, bathroom, terrace 6.88 m², south-west orientation, sea view.
Building 2 (6 residential units)
Apartment A1 – 183,000 EUR
Ground floor, 52.17 m²
Living room with kitchen and dining area, one bedroom, bathroom, terrace 13.70 m², south-west orientation.
Apartment A2 – 174,000 EUR
Ground floor, 49.50 m²
Living room with kitchen and dining area, one bedroom, bathroom, terrace 14.38 m², south-east orientation.
Apartment S1 – 167,000 EUR
First floor, 47.70 m²
Living room with kitchen and dining area, one bedroom, bathroom, loggia 8.42 m², south-west orientation.
Apartment S2 – 155,000 EUR
First floor, 41.82 m²
Living room with kitchen and dining area, one bedroom, bathroom, loggia 4.35 m², south-east orientation.
Apartment S3 – 175,000 EUR
Second floor, 49.24 m²
Living room with kitchen and dining area, one bedroom, bathroom, loggia 8.42 m², south-west orientation, sea view.
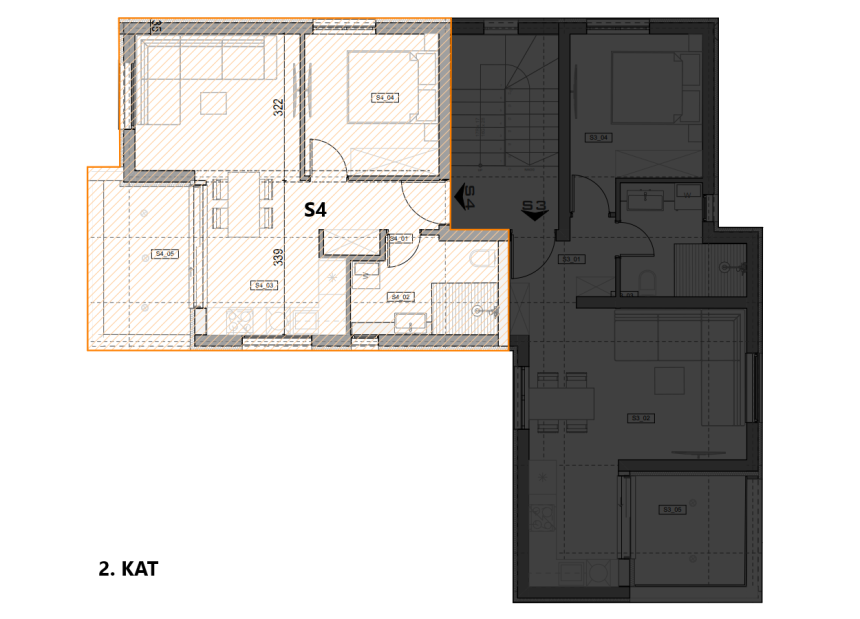
Apartment S4 – 155,000 EUR
Second floor, 41.91 m²
Living room with kitchen and dining area, one bedroom, bathroom, loggia 4.35 m², south-east orientation, sea view.
Key features
new development
sea view
high quality construction
air conditioning included
underfloor heating optional
parking space included
quiet location
450 m from the sea
450 m from the centre
completion: December 2026
d-7225-G-S4, 7313
- Parking/garage


