Chorwacja - Dalmacja Północna
Apartament
nr ofertyHRV004233
290 000 EUR
1 224 931 PLN
Chorwacja
Dalmacja Północna,
zachmurzenie duże
wilgotność: 73%
wiatr: 10km/h
14 oC
Jutro
12 oC

3 pokoje

2 sypialnie

1 łazienka
82 m2
50 m
Ekskluzywny budynek oferujący dziewięć jednostek mieszkalnych.
Z pierwszego i drugiego piętra roztacza się panoramiczny widok na morze.
Do budowy i wyposażenia wnętrz wykorzystywane są wyłącznie materiały najwyższej jakości, pochodzące od renomowanych producentów. Wszystkie apartamenty wyposażone są w kuchnię ze sprzętem AGD wliczonym w cenę apartamentu.
W budynku znajduje się winda.
Kupujący jest zwolniony z podatku od przeniesienia własności nieruchomości.
Dostępne są następujące jednostki mieszkalne:
Parter:
S3 - 82,44 mkw, salon z kuchnią i jadalnią, łazienka, dwie sypialnie, pomieszczenie gospodarcze, pralnia, dwa zadaszone tarasy, taras niezadaszony oraz ogródek. Cena 290.000 EUR
Pierwsze piętro:
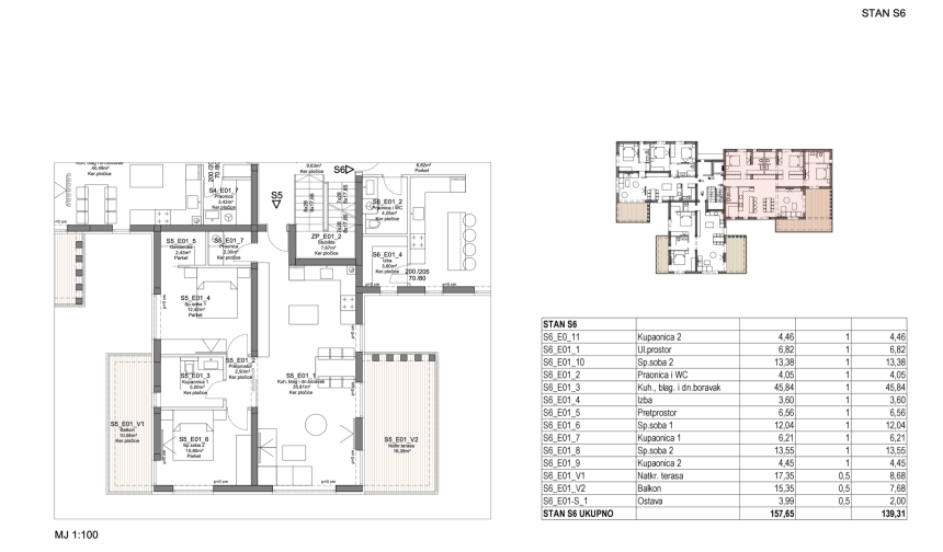
S6 - 139,31 mkw, salon z kuchnią i jadalnią, trzy sypialnie, dwie łazienki, pomieszczenie gospodarcze, pralnia i zadaszony taras i balkon. Cena 490.000 EUR
Drugie piętro
S9 - 171,96 mkw, salon z kuchnią i jadalnią, trzy sypialnie, trzy łazienki, pomieszczenie gospodarcze, pralnia i zadaszony taras, balkon oraz taras na dachu budynku. Cena 690.000 EUR.


