Chorwacja - Dalmacja Północna
Apartament
nr ofertyHRV003963
302 000 EUR
1 276 675 PLN
Chorwacja
Dalmacja Północna,
zachmurzenie duże
wilgotność: 68%
wiatr: 11km/h
15 oC
Jutro
13 oC

3 pokoje

2 sypialnie

1 łazienka
92 m2
Tak
600 m
Mieszkania na sprzedaż w nowym budynku wielo-mieszkaniowym. Nowocześnie wyglądający budynek budowany jest z wysokiej jakości materiałów i będzie wyposażony według najnowszych standardów budowlanych: elewacja styropianowa, szklane ogrodzenie tarasów, stolarka PCV w kolorze antracytowym z elektrycznymi podnośnikami rolet, drzwi wejściowe antywłamaniowe i przeciwpożarowe , podnoszono-przesuwne ściany szklane, nowoczesna armatura łazienkowa, wysokiej jakości wykładziny podłogowe, drzwi wewnętrzne pokojowe mdf, klimatyzatory INVERTER w pokojach i salonie, łącze internetowe/TV w pokojach i salonie.
Budynek posiada trzy kondygnacje: parter + pierwsze piętro + drugie piętro. Na każdym piętrze znajdują się dwa mieszkania.
Budynek położony jest w spokojnej okolicy, ok. 600m od centrum, a planowany termin wprowadzenia to lato 2025.
Apartamenty na pierwszym i drugim piętrze mają piękny panoramiczny widok na morze i wyspy.
Do każdego mieszkania przynależy jedno miejsce parkingowe, a do mieszkań na parterze przynależy także odpowiednia część ogrodu.
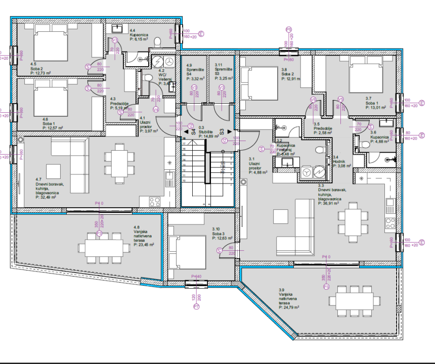
Prezentowany apartament S4 znajduje się na pierwszym piętrze, ma powierzchnię użytkową netto 91,55 m2 i składa się z: przedpokoju, toalety/pralni, łazienki, dwóch sypialni, kuchni z jadalnią oraz salonu z wyjściem na zadaszony taras 11,72 m2. Do apartamentu przynależy jedno miejsce parkingowe. CENA: 302 000 EUR (w cenę wliczony jest podatek VAT)
NA SPRZEDAŻ DOSTĘPNE SĄ RÓWNIEŻ MIESZKANIA W OBIEKCIE:
Apartament S3 znajduje się na pierwszym piętrze, ma powierzchnię użytkową netto 113m2 i składa się z: przedpokoju, łazienki/pralni, trzech sypialni, łazienki, kuchni z jadalnią i salonem oraz zadaszonego tarasu o powierzchni 12,39m2. Do apartamentu przynależy jedno miejsce parkingowe.
CENA: 355 000 EUR (w cenę wliczony jest podatek VAT)


