Chorwacja - Dalmacja Północna
Sukošan
Apartament
nr ofertyHRV004300
345 800 EUR
1 469 270 PLN
Chorwacja
Dalmacja Północna, Sukošan
zachmurzenie umiarkowane
wilgotność: 82%
wiatr: 26km/h
17 oC
Jutro
12 oC

4 pokoje

3 sypialnie

2 łazienki
86 m2
Tak
70 m
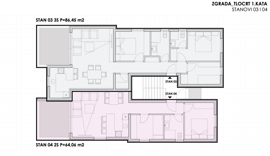
Penthouse o powierzchni 86,45 m2 składa się z kuchni, jadalni, salonu, dwóch łazienek, trzech sypialni, pomieszczenia gospodarczego/pralni i zadaszonego tarasu.
Do apartamentu przynależy jedno miejsce parkingowe na zewnątrz.
Obiekt położony jest w doskonałej lokalizacji, zaledwie 70 metrów od morza.
Z tarasu roztacza się panoramiczny widok na morze.
Do budowy i wyposażenia wnętrz wykorzystywane są wyłącznie materiały najwyższej jakości, pochodzące od renomowanych producentów.
Zakończenie wszystkich prac i przeprowadzka planowane są na 1 lipca 2025 r.
- Parking/garaż


