Chorwacja - Dalmacja Północna
Vodice
Apartament
nr ofertyHRV003960
375 000 EUR
1 593 338 PLN
Chorwacja
Dalmacja Północna, Vodice
zachmurzenie umiarkowane
wilgotność: 65%
wiatr: 37km/h
20 oC
Jutro
13 oC

4 pokoje

3 sypialnie

2 łazienki
101 m2
Tak
350 m
Apartamenty na sprzedaż w nowoczesnym budynku, położonym w doskonałej lokalizacji, tylko 350 m od plaży i 800 m od centrum miasta. Budynek mieszczący łącznie 6 mieszkań rozciąga się na 3 piętrach: parter + piętro + drugie piętro. Budynek budowany jest z nowoczesnych i wysokiej jakości materiałów oraz będzie wyposażony według najnowszych standardów: elewacja styropianowa, stolarka PCV w kolorze antracytowym, rolety z silnikami elektrycznymi, ceramika najwyższej jakości, nowoczesna armatura łazienkowa, we wszystkich oknach ogrzewanie podłogowe z wyjątkiem sypialni, klimatyzacja inwerterowa we wszystkich pokojach i salonie.
Każdy apartament posiada piękny widok na morze.
Planowany termin wprowadzenia się to lato 2025 roku.
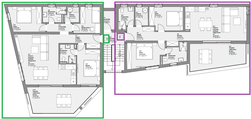
Prezentowany apartament S3 znajduje się na pierwszym piętrze, ma powierzchnię użytkową netto 101,25m2 i składa się z: przedpokoju, pokoju dziennego z kuchnią i jadalnią, trzech sypialni, jedna z prywatną łazienką, pralni, łazienki, zadaszonego tarasu z widokiem na morze oraz jednego miejsca parkingowego. CENA: 375 000 EUR
W tej inwestycji na sprzedaż są również mieszkania:
PARTER:
Mieszkanie S1 SPRZEDANE
Mieszkanie S2 SPRZEDANE
PIERWSZE PIĘTRO:
Apartament S4: znajduje się na pierwszym piętrze, ma powierzchnię użytkową netto 90,68m2 i składa się z: przedpokoju, pokoju dziennego z kuchnią i jadalnią, dwóch sypialni, jedna z prywatną łazienką, pralni, łazienki, zadaszonego tarasu z widokiem na morze oraz jednego miejsca parkingowego. CENA: 330 000 EUR
DRUGIE PIĘTRO:
Apartament S5: znajduje się na drugim piętrze, ma powierzchnię użytkową netto 101,25m2 i składa się z: przedpokoju, przedpokoju, pokoju dziennego z kuchnią i jadalnią, trzech sypialni, jedna z prywatną łazienką, pralni, łazienki, zadaszonego tarasu z widokiem na morze oraz jednego miejsca parkingowego. CENA: 395 000 EUR
Mieszkanie S6: znajduje się na drugim piętrze, ma 88,84m2 powierzchni użytkowej netto i składa się z: przedpokoju, pokoju dziennego z kuchnią i jadalnią, dwóch sypialni, jedna z prywatną łazienką, pralni, łazienki, zadaszonego i niezadaszonego tarasu z widokiem na morze oraz jednego miejsca parkingowego. CENA: 365 000 EUR
- Parking/garaż


