Chorwacja - Dalmacja Północna
Šibenik
Apartament
nr ofertyHRV004815
550 000 EUR
2 346 630 PLN
Chorwacja
Dalmacja Północna, Šibenik
zachmurzenie duże
wilgotność: 58%
wiatr: 16km/h
12 oC
Jutro
12 oC

6 pokoi

4 sypialnie

3 łazienki
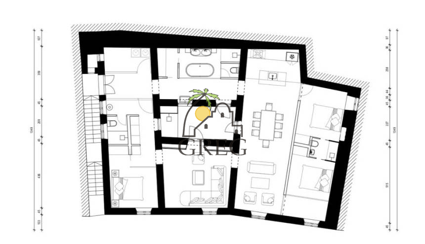
150 m2
Tak
20 m
W sercu Szybenika, z magicznym widokiem na promenadę, morze i imponujący kanał św. Antoniego, na sprzedaż jest przestronny, luksusowo odnowiony apartament, położony na pierwszym piętrze niewielkiego budynku mieszkalnego.
Nieruchomość ta oferuje idealne połączenie historycznego uroku i nowoczesnego komfortu – idealny wybór dla osób pragnących mieszkać w samym centrum miasta, w otoczeniu zabytków kultury i naturalnego piękna.
Apartament o powierzchni 150 m² charakteryzuje się wyjątkowo funkcjonalnym układem, składającym się z przedpokoju, korytarza, czterech przestronnych sypialni i trzech elegancko zaprojektowanych łazienek. Wszystkie łazienki wyposażone są w ogrzewanie podłogowe i wysokiej jakości włoską ceramikę, zapewniając wyjątkowe poczucie luksusu i komfortu.
Nowoczesny system klimatyzacji i wentylacji jest sterowany centralnie, a każdy pokój ma własną jednostkę, co pozwala na optymalną regulację temperatury, dostosowaną do indywidualnych preferencji.
Podłogi wykończone są wysokiej jakości parkietem dębowym, a podczas renowacji zamontowano nowe drewniane belki, co podkreśla zarówno integralność konstrukcji, jak i autentyczny charakter przestrzeni.
Zewnętrzna stolarka wykonana jest z wysokiej jakości drewna – w tym okna i drzwi wejściowe – a atrium posiada aluminiowe otwory, płynnie łącząc tradycyjną estetykę z nowoczesną funkcjonalnością.
Wyróżniającą się przestrzenią jest piękne wewnętrzne atrium, które wpuszcza mnóstwo naturalnego światła. Dzięki istniejącym przyłączem wody i prądu, atrium można z łatwością dostosować do indywidualnych potrzeb – czy to jako przestrzeń do relaksu, medytacji, ogród, czy nawet instalację jacuzzi.
Apartament został całkowicie odnowiony, w tym wymieniono wszystkie instalacje elektryczne i wodno-kanalizacyjne. Zewnętrzne schody prowadzące do apartamentu są przeznaczone wyłącznie dla tego apartamentu, zapewniając dodatkową prywatność.
Dodatkowym atutem są dwie kuchnie i przemyślane rozwiązania, które umożliwiają łatwą adaptację na dwa oddzielne lokale mieszkalne lub komercyjne – idealne do połączenia przestrzeni mieszkalnej i biurowej lub jako inwestycja turystyczna w postaci wynajmu apartamentów.
- Pierwsza linia do morza


