Chorwacja - Dalmacja Północna
Apartament
nr ofertyHRV004234
670 000 EUR
2 850 381 PLN
Chorwacja
Dalmacja Północna,
zachmurzenie duże
wilgotność: 97%
wiatr: 2km/h
13 oC
Jutro
13 oC

4 pokoje

3 sypialnie

3 łazienki
172 m2
Tak
50 m
Ekskluzywny budynek oferujący dziewięć jednostek mieszkalnych.
Z pierwszego i drugiego piętra roztacza się panoramiczny widok na morze.
Do budowy i wyposażenia wnętrz wykorzystywane są wyłącznie materiały najwyższej jakości, pochodzące od renomowanych producentów. Wszystkie apartamenty wyposażone są w kuchnię ze sprzętem AGD wliczonym w cenę apartamentu.
W budynku znajduje się winda.
Kupujący jest zwolniony z podatku od przeniesienia własności nieruchomości.
Dostępne są następujące jednostki mieszkalne:
Parter:
S2 - 104,49 mkw, salon z kuchnią i jadalnią, łazienka, dwie sypialnie, garderoba, pomieszczenie gospodarcze, pralnia, dwa zadaszone tarasy, taras niezadaszony ora ogródek. Cena 397.062 EUR
S3 - 82,44 mkw, salon z kuchnią i jadalnią, łazienka, dwie sypialnie, pomieszczenie gospodarcze, pralnia, dwa zadaszone tarasy, taras niezadaszony oraz ogródek. Cena 313.272 EUR
Pierwsze piętro:
S4 - 96,14 mkw, salon z kuchnią i jadalnią, trzy sypialnie, dwie łazienki, pomieszczenie gospodarcze, pralnia i zadaszony taras. Cena 374.946 EUR
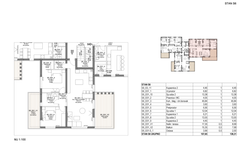
S6 - 139,31 mkw, salon z kuchnią i jadalnią, trzy sypialnie, dwie łazienki, pomieszczenie gospodarcze, pralnia i zadaszony taras i balkon. Cena 534.309 EUR
Drugie piętro
S9 - 171,96 mkw, salon z kuchnią i jadalnią, trzy sypialnie, trzy łazienki, pomieszczenie gospodarcze, pralnia i zadaszony taras, balkon oraz taras na dachu budynku. Cena 670.000 EUR.


